VYKY 100


✅ Základní parametry
- Dispozice: 4+kk
- Užitná plocha: cca 100 m²
- Typ konstrukce: Rámová dřevostavba (možnost difuzně otevřené i uzavřené skladby)
- Střecha: Sedlová/šikmá
- Typ domu: Přízemní bungalov
🧩 Dispoziční řešení na míru
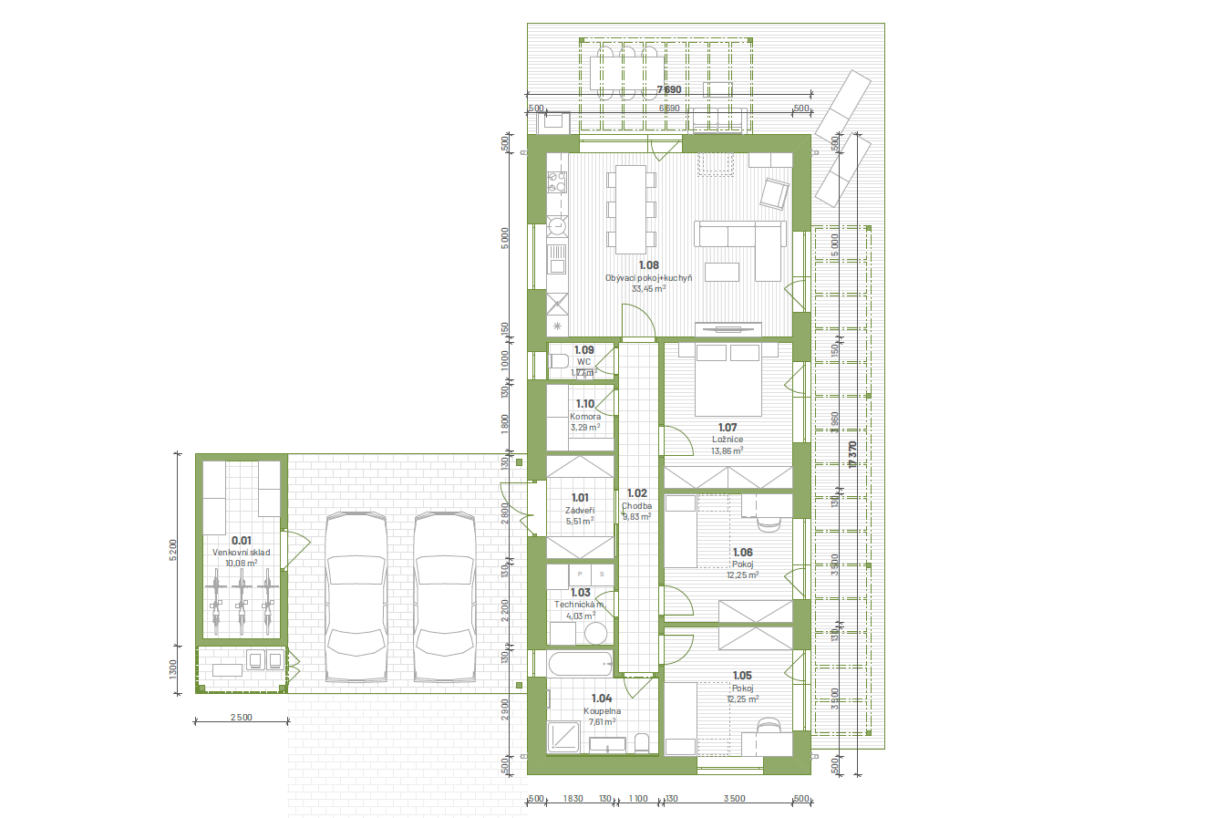
Model VYKY 100 nabízí prostorný obývací pokoj s kuchyňským koutem, hlavní ložnici, dvě další obytné místnosti, koupelnu, samostatné WC, technické zázemí a skladovací místnost. Dispozice je promyšlená tak, aby odpovídala běžným potřebám moderní rodiny.
- Velkorysý obytný prostor propojený s venkovní terasou
- Možnost zrcadlového otočení a přizpůsobení vstupu
- Příprava na rekuperaci, TČ, fotovoltaiku, stínění apod.
♻️ Úspora a ekologie
- Nízkoenergetický nebo pasivní standard dle přání investora
- Vhodný pro dotace Nová zelená úsporám
- Kvalitní izolační materiály a rychlá montáž
✨ Design a variabilita
Model lze snadno přizpůsobit individuálním požadavkům – od výběru typů fasád, rozvržení interiéru, až po výběr oken, stínění a detailů. Jednoduchá, ale elegantní architektura se hodí do měst i na vesnici.
🔑 Výhody modelu VYKY 100
Kompatibilní s přístřeškem, garáží či zahradním domkem
Ideální pro rodiny s dětmi
Rozumné provozní náklady
Rychlá výstavba díky typové dokumentaci
Vysoký komfort a dlouhá životnost

Prostorný bungalov 4+kk
Cena domu na klíč obsahuje
Projektová dokumentace
Stavební základy
Konstrukce domu
Izolace a povrchové úpravy
Technické instalace
Interiéry a vybavení
Exteriéry a doplňky
Administrativa a služby
Co není zahrnuto v ceně na klíč? (dle dohody je možné)
Naše technologie
Naše technologie – efektivní a kvalitní dřevostavby z Benešova u Prahy
Naše firma se specializuje na rámové dřevostavby typu „two by four“, realizované letmou výstavbou přímo na místě. Tento způsob výstavby umožňuje vysokou flexibilitu, rychlost a efektivitu při tvorbě kvalitních a stabilních konstrukcí. Při realizaci těchto dřevostaveb využíváme doporučené skladby od renomované firmy Rigips, které zajišťují optimální akustickou izolaci a tepelnou pohodu. Naše technologie zahrnuje jak difuzně otevřené, tak difuzně uzavřené konstrukce, což umožňuje přizpůsobení stavby specifickým požadavkům na ventilaci, vlhkost a celkový komfort bydlení. Důraz klademe na kvalitu materiálů a precizní zpracování každého detailu, což zaručuje dlouhou životnost a energetickou úspornost našich dřevostaveb.
Více než 25 let zkušeností
Jsme rodinná firma z Benešova u Prahy s více než 25 lety zkušeností v oblasti výstavby dřevostaveb, hrubých staveb, krovů a střech. Naší prioritou je kvalita, spolehlivost a individuální přístup – ke každému projektu přistupujeme, jako by byl náš vlastní. Nabízíme moderní technologie, precizní zpracování a řešení na míru, ať už se jedná o typové domy nebo unikátní individuální stavby. Dlouholeté zkušenosti a pečlivost nám umožňují vytvářet domy, které splňují nejvyšší standardy a poskytují zákazníkům pohodlí, funkčnost i dlouhou životnost.

Pojďme probrat váš projekt
Kontaktujte nás a my vám pomůžeme najít ideální řešení – ať už hledáte rychlou typovou dřevostavbu, nebo sníte o domě na míru.
Před naší společnou schůzkou vyplňte zadávací formulář.








