VYKY 130


✅ Základní parametry
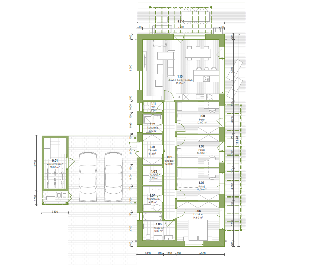
- Dispozice: 5+kk
- Užitná plocha: cca 130 m²
- Konstrukce: rámová dřevostavba
- Standard: nízkoenergetický nebo pasivní
- Fasáda a krytina: variabilní dle požadavku klienta
🧩 Praktická dispozice s dvěma koupelnami
Dům VYKY 130 zahrnuje prostorný obývací pokoj s kuchyní a jídelnou, hlavní ložnici, tři obytné pokoje, dvě koupelny, samostatné WC, technickou místnost a velké úložné prostory. Všechny místnosti mají přirozené denní světlo a dostatečné soukromí.
- Ideální pro větší rodiny nebo domácí kancelář
- Možnost přístavby garáže, stání či terasy
- Dispozici lze zrcadlově otočit nebo upravit
♻️ Moderní standard a úspory
- Možnost stavby v pasivním standardu
- Připraveno na rekuperaci, TČ, FVE, dešťovku apod.
- Ideální pro dotace z programu Nová zelená úsporám
- Difuzně otevřená nebo uzavřená skladba dle přání klienta
✨ Vzhled, který zapadne i vynikne
Design domu je jednoduchý a elegantní, připravený pro přirozené začlenění do různých typů pozemků – městské parcely, předměstí i venkov. Kombinace dřeva, omítky a moderních detailů zaručuje nadčasovost.
🔑 Výhody modelu VYKY 130
Kompatibilita s garáží, přístřeškem i zahradním domkem
Prostorný a komfortní bungalov
Dvě koupelny – vyšší komfort pro rodinu
Variabilní fasáda, barvy, skladba
Rychlá a kvalitní montáž dřevostavby
Energeticky úsporný provoz

Komfortní bungalov 5+kk
Cena domu na klíč obsahuje
Projektová dokumentace
Stavební základy
Konstrukce domu
Izolace a povrchové úpravy
Technické instalace
Interiéry a vybavení
Exteriéry a doplňky
Administrativa a služby
Co není zahrnuto v ceně na klíč? (dle dohody je možné)
Naše technologie
Naše technologie – efektivní a kvalitní dřevostavby z Benešova u Prahy
Naše firma se specializuje na rámové dřevostavby typu „two by four“, realizované letmou výstavbou přímo na místě. Tento způsob výstavby umožňuje vysokou flexibilitu, rychlost a efektivitu při tvorbě kvalitních a stabilních konstrukcí. Při realizaci těchto dřevostaveb využíváme doporučené skladby od renomované firmy Rigips, které zajišťují optimální akustickou izolaci a tepelnou pohodu. Naše technologie zahrnuje jak difuzně otevřené, tak difuzně uzavřené konstrukce, což umožňuje přizpůsobení stavby specifickým požadavkům na ventilaci, vlhkost a celkový komfort bydlení. Důraz klademe na kvalitu materiálů a precizní zpracování každého detailu, což zaručuje dlouhou životnost a energetickou úspornost našich dřevostaveb.
Více než 25 let zkušeností
Jsme rodinná firma z Benešova u Prahy s více než 25 lety zkušeností v oblasti výstavby dřevostaveb, hrubých staveb, krovů a střech. Naší prioritou je kvalita, spolehlivost a individuální přístup – ke každému projektu přistupujeme, jako by byl náš vlastní. Nabízíme moderní technologie, precizní zpracování a řešení na míru, ať už se jedná o typové domy nebo unikátní individuální stavby. Dlouholeté zkušenosti a pečlivost nám umožňují vytvářet domy, které splňují nejvyšší standardy a poskytují zákazníkům pohodlí, funkčnost i dlouhou životnost.

Pojďme probrat váš projekt
Kontaktujte nás a my vám pomůžeme najít ideální řešení – ať už hledáte rychlou typovou dřevostavbu, nebo sníte o domě na míru.
Před naší společnou schůzkou vyplňte zadávací formulář.








